Sargent Gardens - My Rink In Progress

Pictures, Videos...let's see your slab!
UnionAMG
Rink Rookie
Posts: 15
Joined: Thu Jan 02, 2014 1:41 pm
Rink Dimensions: 64 x 36
Materials:
Location: Buffalo, NY

Sargent Gardens - My Rink In Progress

Postby UnionAMG » Mon Sep 22, 2014 2:47 pm

We moved into a new house last winter, and am lucky enough to have a decent tennis court in our yard for a solid ice rink base. I'm taking the plunge this year with my first rink build ever. I'll post my progress here, and will welcome any advice or questions from the board!
Attachments
IMG_0439.jpg
Future site of Sargent Gardens Ice Rink
IMG_0439.jpg (103.48 KiB) Viewed 100779 times

UnionAMG
Rink Rookie
Posts: 15
Joined: Thu Jan 02, 2014 1:41 pm
Rink Dimensions: 64 x 36
Materials:
Location: Buffalo, NY

Re: Sargent Gardens - My Rink In Progress

Postby UnionAMG » Mon Sep 22, 2014 2:52 pm

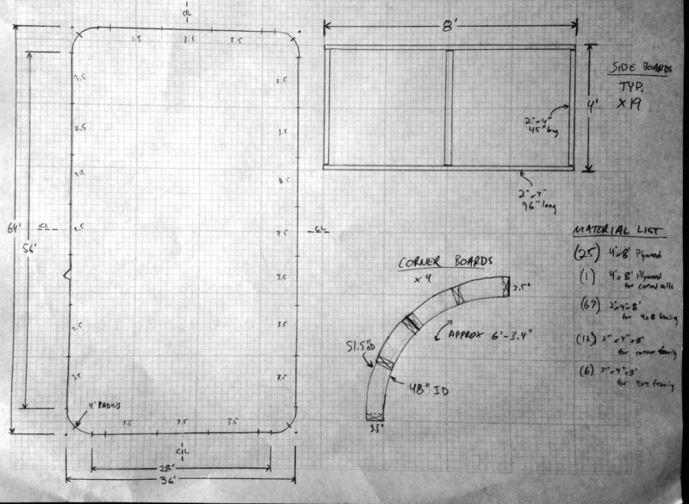
First step was planning the rink layout. I settled on a 64' x 36' layout that takes up about 2/3 of the tennis court. I'll make the boards out of 4'x8' sheets of 1/2" plywood, framed with 2x4's. Those will be bolted together end to end through the 2x4's, and then supported with angle brackets that will hold the boards upright (with some sandbags adding weight/stability).

The overhead layout shows the number 8' board sections (20), and the 4' radius curved corners (each corner is 2 sections in itself).

I'll also be making one (or more) sections that have wide 2 door openings.
Attachments
photo 1 a.JPG
photo 1 a.JPG (51.33 KiB) Viewed 100778 times
photo 2 a.JPG
photo 2 a.JPG (226.55 KiB) Viewed 100778 times

UnionAMG
Rink Rookie
Posts: 15
Joined: Thu Jan 02, 2014 1:41 pm
Rink Dimensions: 64 x 36
Materials:
Location: Buffalo, NY

Re: Sargent Gardens - My Rink In Progress

Postby UnionAMG » Mon Sep 22, 2014 3:05 pm

I wanted to make one section of each type (the side panels, and the corners) prior to going all assembly line on the 2x4s and cutting everything I need to size.

The first side panel was easy enough. An 8' 2x4 on top and bottom, supported by four 2x4's cut to 45" each matches exactly to the 4'x8' plywood sheets. Everything secured with galvanized screws to resist rusting.

The corners were obviously going to be a little more challenging. I drew the template for the top and bottom curved rails on a 3/4" piece of plywood. Each curved rail has an inner radius of 48", and an outer radius of 51.5". This gives the rails the same thickness as the 2x4s on the side panels and the supports between each rail. The curved portion spans a 45degree angle, so two of them put together make each 90 degree corner. All together, I need 16 of these curved rails (two per 45 deg section x 2 sections per corner x 4 corners = 16). These all fit on one piece of plywood, plus a couple spares. I used a jigsaw to cut these out.

Then I attached the top and bottom curved rails together with 2x4's cut to approx 46.5". This makes the board height 48" to match the side panels.
Attachments
1.JPG
1.JPG (211.66 KiB) Viewed 100777 times
2.JPG
2.JPG (187.06 KiB) Viewed 100777 times
3.JPG
3.JPG (234.44 KiB) Viewed 100777 times

UnionAMG
Rink Rookie
Posts: 15
Joined: Thu Jan 02, 2014 1:41 pm
Rink Dimensions: 64 x 36
Materials:
Location: Buffalo, NY

Re: Sargent Gardens - My Rink In Progress

Postby UnionAMG » Mon Sep 22, 2014 3:11 pm

Then I had to face the curved frames with plywood. I've heard people doing this with multiple layers of 1/4" plywood, but I stuck with my 1/2" plywood that I'm using on the side panels. I cut one 4'x8' sheet in half to make a 4'x4' square. I used kerf cuts every 8" up and down the back of the plywood (leaving 2 of the 4 layers of plywood in tact). This let me use wood clamps to bend the panel to match the curve of the frame, and then I secured with lots of screws. The plywood hung over the end of the curved frame by about 6" on either side, so I made a chalk line where the edge of the frame was, and sawed off the hanging plywood.

Repeated this for a second curved corner section, and I now have my "prototype" to build a bunch more.

Need to make 18 more side panels (plus one more side panel that allows for the door area), and 6 more curved panels. Still plenty of time to get that done before assembly around the end of November.
Attachments
4.JPG
4.JPG (217.93 KiB) Viewed 100777 times
5.JPG
5.JPG (105.36 KiB) Viewed 100777 times

UnionAMG
Rink Rookie
Posts: 15
Joined: Thu Jan 02, 2014 1:41 pm
Rink Dimensions: 64 x 36
Materials:
Location: Buffalo, NY

Re: Sargent Gardens - My Rink In Progress

Postby UnionAMG » Fri Oct 17, 2014 10:25 am

I have the corner boards all painted and finished. Now I can move them to the shed to make room for the side boards to be built. The anxious countdown to construction continues. Looking forward to this winter!
Attachments
image.jpg
image.jpg (117.8 KiB) Viewed 100679 times

UnionAMG
Rink Rookie
Posts: 15
Joined: Thu Jan 02, 2014 1:41 pm
Rink Dimensions: 64 x 36
Materials:
Location: Buffalo, NY

Re: Sargent Gardens - My Rink In Progress

Postby UnionAMG » Thu Dec 04, 2014 3:04 pm

The fabrication of my rink boards is complete. 20 side boards (one with the door section) & 8 curved corner sections ready for assembly this weekend. Water fill next couple weeks if Mother Nature cooperates in Buffalo!
Attachments
SargentGardens.jpg
SargentGardens.jpg (103.44 KiB) Viewed 100461 times

UnionAMG
Rink Rookie
Posts: 15
Joined: Thu Jan 02, 2014 1:41 pm
Rink Dimensions: 64 x 36
Materials:
Location: Buffalo, NY

Re: Sargent Gardens - My Rink In Progress

Postby UnionAMG » Sun Dec 07, 2014 8:48 pm

Assembly went super smooth, with three friends helping. Start to finish in about 2 hours. Some pics are below. 10 day forecast for Buffalo isn't very promising for ice making. Hopefully that will change two weeks out from now and I can make my first ice for a Christmas skate. Now to start on the kick plates!
Attachments
Birds Eye.jpg
Birds Eye.jpg (116.4 KiB) Viewed 100425 times
brackets.jpg
brackets.jpg (207.21 KiB) Viewed 100425 times
rink level 2.jpg
rink level 2.jpg (255.5 KiB) Viewed 100425 times

dan_vining
Rink Rookie
Posts: 3
Joined: Sat Dec 06, 2014 8:21 am
Rink Dimensions: 40x24
Materials: OSB/plywood with 2x3/2x4 structure, on an asphalt court

Re: Sargent Gardens - My Rink In Progress

Postby dan_vining » Mon Dec 08, 2014 7:14 pm

That is a hell of a rink.

I put is plastic kick plates last year (I think from Nice Rink). They caused problems when it rained. The rain got under the ice, which was frozen to the kick plates, and lifted the ice up/the ice floated up. This lifted the whole frame up and then allowed the frame to spread out. The deep side was an inch or so off the ground, with the liner bulging underneath. I think this lifting is particular to areas where it wlll rain significantly (I'm in CT, don't know about Buffalo) and with the hard surface build.

UnionAMG
Rink Rookie
Posts: 15
Joined: Thu Jan 02, 2014 1:41 pm
Rink Dimensions: 64 x 36
Materials:
Location: Buffalo, NY

Re: Sargent Gardens - My Rink In Progress

Postby UnionAMG » Mon Dec 08, 2014 9:26 pm

Thanks for that info. I'll admit to never considering that lifting possibility, but I'm really glad to know of the potential now instead of seeing it in person!

I am putting 45lb cinder blocks on each of my triangle brackets (at the junction of every board). This was my way to combat any horizontal force of holding the water in and the boards sliding out of shape, but would hopefully prevent this lifting you brought up. Since I have a pretty flat surface with only about 3" slope, there also won't be as much water to hold back as some other rinks.

UnionAMG
Rink Rookie
Posts: 15
Joined: Thu Jan 02, 2014 1:41 pm
Rink Dimensions: 64 x 36
Materials:
Location: Buffalo, NY

Re: Sargent Gardens - My Rink In Progress

Postby UnionAMG » Mon Jan 12, 2015 9:45 am

After some trying times in Buffalo, with day after day of snowfall, I finally got the rink in decent shape. I had my first solo skate on it Saturday morning. With no resurfaces the ice was probably a C. I wanted to resurface Saturday night, but another snowfall prevented me from doing it.

Sunday morning I got the snowblower out there to clear and somehow the surface improved. Had our first shinny game Sunday morning and played for a couple hours. What a great time, and it was well worth all the work. Looking forward to many more!

Posted a couple pics to this post, and a video here: http://youtu.be/JJq2sOcP7_Q
Attachments
IMG_5966.JPG
IMG_5966.JPG (149.3 KiB) Viewed 100153 times
IMG_5984.JPG
IMG_5984.JPG (140.83 KiB) Viewed 100153 times


Return to “Show Off Your Rink”

Who is online

Users browsing this forum: No registered users and 18 guests